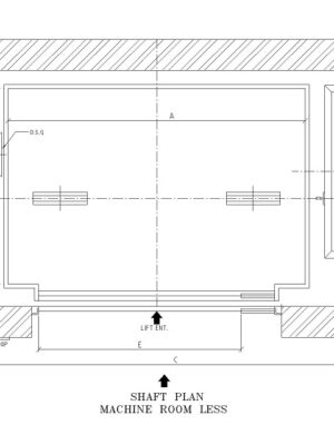
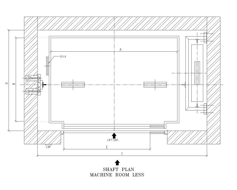
With string durable and scientific space design products of Star Elevator, Freight Elevator series fully understands the need of up & down of logistics transportation to provide user friendly design. Spaciousness and extremely convenient technology makes it reliable. Freight Lift carries the speed of 0.32 MPS with a capacity of 500-10000 kg of load.
Freight / Goods Elevator

Fully Automatic Features
- Automatic Rescue Device (ARD) with Voice Enabled Emergency Backup System (VEEBS)
- Auto Phase Reversal (APR)
- Jerk Free Ride
- Infra Red Full Length Doors Sensor With 154 Beams
- Motor Thermal Protection Function Etc.
- Wide Range Of Doors with Width and Height
- As Per BIS & EN Standard
- Simplex Collective – Selective,
- Fireman Operation
- Cabin Call Cancellation / Erase
- Voice Announcement System
- Emergency Light with battery backup
- Various Speed Range (0.3 MPS to 3 MPS)
- Door open and Door Close button in cabin
- Cross flow Blower Fan
- Emergency Alarm with battery backup
- Top of the cabin inspection
- Emergency break release and Manual Operation
- Re-open in HALL Call button operation
- Electro-mechanical type landing locks
- Cabin Fan and Light Shut Off and Automatic
- Overload Device With Voice Announcement
Optional Features
- Duplex Collective – Selective, Triplex Functioning Available.
- Selectable Service Floors Function
- 2 Hours Fire Rated Doors approved By CBRI-IIT, Roorkey
- Braille on push Buttons
- Various types of LCD / TFT display (Digital floor position indicator with Up and Down arrow, Seven segments / Digital red Dot Matrix scrolling display in car and landing)
- Access Control System
- Variety of Stainless Steel & Colored SS finishes for Cabins & Doors, Coloured SS finishes vis a vis Gold / Rose Gold / Black / Copper etc.
- Full Vision Glass Doors
- Small Vision Glass Doors
- Push & Touch Panel COP / LOP
- Vast range of designer ceilings with laser cut designs, chandeliers and other lighting options.
- Intercom
Manual Lift Features
- Automatic Rescue Device (ARD) with Voice Enabled Emergency Backup System (VEEBS)
- Auto Phase Reversal (APR)
- Jerk Free Ride
- Infra Red Full Length Doors Sensor With 154 Beams
- Motor Thermal Protection Function Etc.
- Wide Range Of Doors with Width and Height
- As Per BIS & EN Standard
- Simplex Collective – Selective,
- Fireman Operation
- Cabin Call Cancellation / Erase
- Emergency Light with battery backup
- Various Speed Range (0.3 MPS to 3 MPS)
- Door open and Door Close button in cabin
- Cross flow Blower Fan
- Emergency Alarm with battery backup
- Top of the cabin inspection
- Emergency break release and Manual Operation
- Re-open in HALL Call button operation
- Electro-mechanical type landing locks
- Cabin Fan and Light Shut Off and Automatic
- Overload Device With Voice Announcement
Optional Features
- Duplex Collective – Selective, Triplex Functioning Available.
- Selectable Service Floors Function
- 2 Hours Fire Rated Doors approved By CBRI-IIT, Roorkey
- Braille on push Buttons
- Various types of LCD / TFT display (Digital floor position indicator with Up and Down arrow, Seven segments / Digital red Dot Matrix scrolling display in car and landing)
- Different type of Flooring (Vitrified tiles / Wooden / PVC Flooring)
- Access Control System
- Variety of Stainless Steel & Colored SS finishes for Cabins & Doors, Coloured SS finishes vis a vis Gold / Rose Gold / Black / Copper etc.
- Full Vision Glass Doors
- Small Vision Glass Doors
- Push & Touch Panel COP / LOP
- Vast range of designer ceilings with laser cut designs, chandeliers and other lighting options.
- Intercom
- Manual Doors are also available




