Hydraulic Lift for Home: With introduction of Soft Start & Stop feature we make your ride
absolutely jerk free & smooth. The reason we command Indian home lifts market is that our lifts
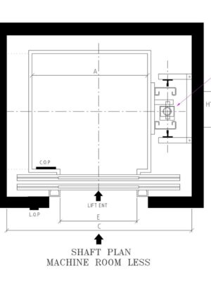
require a less pit of 300mm with no overhead & operate on single phase power supply.
With home elevator solution from Hybon, you can bring your vision to life. We set the industry
standard with a variety one-of-a-kind looks and unique features with universal design. We provide
customers with residential elevators that help make day-to-day living better. Every home elevator has
an innovative design to create the ultimate experience.
Home Lift Hydraulic

Features
- Single phase and Three phase option available
- Pit minimum required 300mm
- Overhead minimum required 2800mm
- Car Travel maximum 15 Metre
- Speed maximum 0.4 to 0.5 MPS
- Customized option for Car shades, Handrails, False Ceiling and Flooring available
- Customized product
- In case of power failure an automatic control device brings the car back to the landing and allows the exit the passengers.





